solgt


solgt
Hvedevangen 4, Boeslum, 8400 Ebeltoft
Idyllisk fritidshus
Drømmer du om et idyllisk fritidshus, højt beliggende på en skråning, omkranset af natur og med en
betagende udsigt over det omkringliggende landskab og golfbanen? Så er dette charmerende hjem det
perfekte match for dig.
Fritidshuset byder på en række faciliteter, herunder en rummelig garage med tilhørende udhus, der er
ideel til opbevaring af både værktøj, cykler og andet udstyr. Derudover får du det bedste fra både byliv og
natur, da huset er beliggende i naturskønne omgivelser i gåafstand til Ebeltoft centrum.
Med en grund på hele 2.418 m2, har du masser af plads at boltre dig på, men lokalplan LP171 åbner
også op for en mulig udstykning af en grund på op til 1.200 m2 - dog minimum 900 m2.
Udstykningen er ikke en garanti før kommunen har godkendt
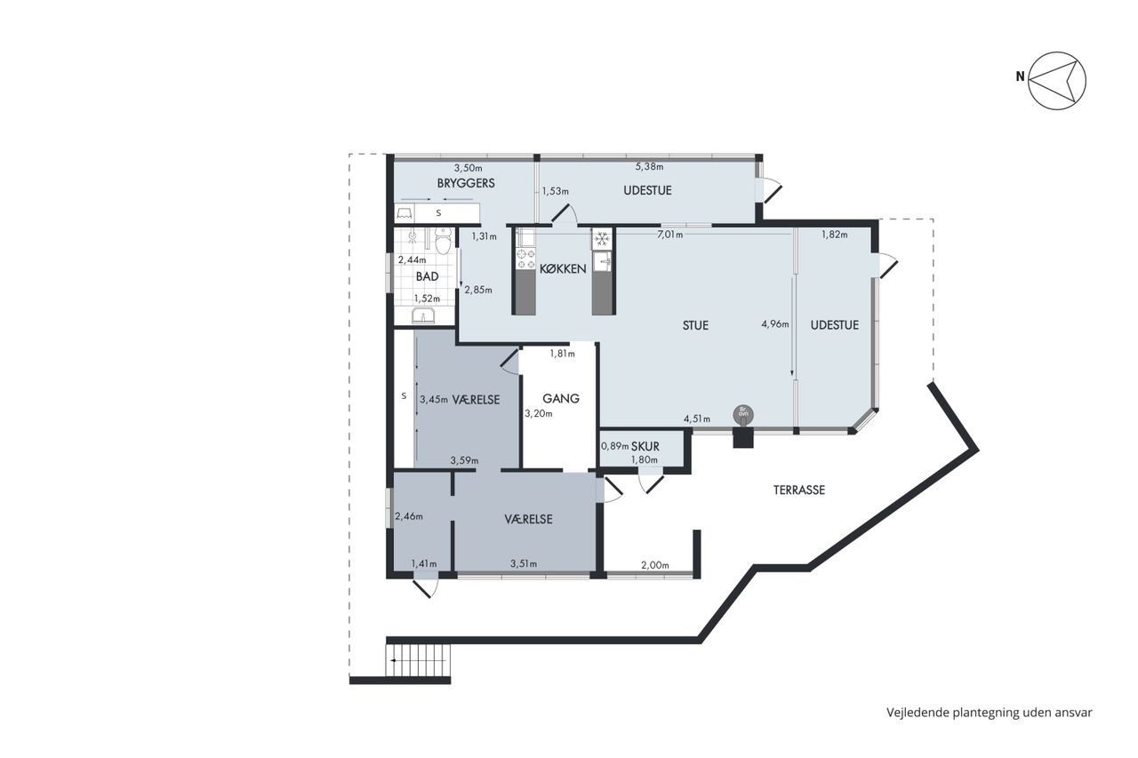
Ved ankomsten til huset bliver du mødt af et overdækket indgangsparti, perfekt til morgenhygge ved et lille
cafebord. Herfra går du ind i køkkenet, der er i åben forbindelse med stuen og den dejlig udestue, der
fører dig ud på den kæmpestore terrasse, der strækker sig langs hele husets syd- og vestvendte side, og
giver dig mulighed for at nyde solen og den fantastiske udsigt i fulde drag.
Huset rummer desuden to gode værelser, hvoraf det ene er udstyret med en skabsvæg til opbevaring,
mens det andet har et mindre kammer, der kan anvendes til walk-in, kontor eller hvad man lyster. En
mellemgang fører dig til et stort badeværelse samt et praktisk bryggers med vaskefaciliteter og
skabsplads.
Med sin fantastiske beliggenhed og skønne udsigt over området, giver dette fritidshus en unik mulighed
for at opfylde dine drømme om det perfekte hjem i naturskønne omgivelser.
Drømmer du om et idyllisk fritidshus, højt beliggende på en skråning, omkranset af natur og med en
betagende udsigt over det omkringliggende landskab og golfbanen? Så er dette charmerende hjem det
perfekte match for dig.
Fritidshuset byder på en række faciliteter, herunder en rummelig garage med tilhørende udhus, der er
ideel til opbevaring af både værktøj, cykler og andet udstyr. Derudover får du det bedste fra både byliv og
natur, da huset er beliggende i naturskønne omgivelser i gåafstand til Ebeltoft centrum.
Med en grund på hele 2.418 m2, har du masser af plads at boltre dig på, men lokalplan LP171 åbner
også op for en mulig udstykning af en grund på op til 1.200 m2 - dog minimum 900 m2.
Udstykningen er ikke en garanti før kommunen har godkendt
Ved ankomsten til huset bliver du mødt af et overdækket indgangsparti, perfekt til morgenhygge ved et lille
cafebord. Herfra går du ind i køkkenet, der er i åben forbindelse med stuen og den dejlig udestue, der
fører dig ud på den kæmpestore terrasse, der strækker sig langs hele husets syd- og vestvendte side, og
giver dig mulighed for at nyde solen og den fantastiske udsigt i fulde drag.
Huset rummer desuden to gode værelser, hvoraf det ene er udstyret med en skabsvæg til opbevaring,
mens det andet har et mindre kammer, der kan anvendes til walk-in, kontor eller hvad man lyster. En
mellemgang fører dig til et stort badeværelse samt et praktisk bryggers med vaskefaciliteter og
skabsplads.
Med sin fantastiske beliggenhed og skønne udsigt over området, giver dette fritidshus en unik mulighed
for at opfylde dine drømme om det perfekte hjem i naturskønne omgivelser.
Ejendomsmæglerfirmaet Berg Halager ApS
Har du brug for at få solgt først?
Bestil din professionelle salgsvurdering nu og kickstart dit boligsalg!
Få besked når en ny bolig kommer til salg.
Når vi kender dine ønsker, kan vi langt bedre hjælpe dig videre til din din næste bolig.


